Appartamento In vendita
via Carrubbara cmpl. MESSINA DUE
Messina, ME € 195000 (ID: CM765)
Descrizione
APPARTAMENTO ATTUALMENTE LIBERO
PANORAMICO E SIGNORILE – RESIDENZIALE “MESSINA DUE”
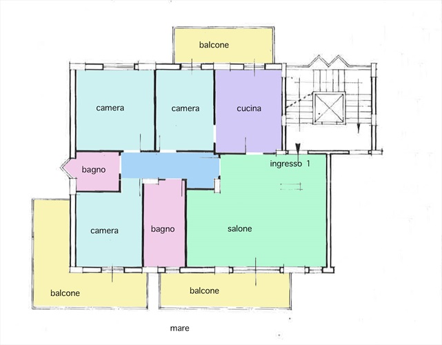
Nella splendida cornice del complesso “Messina Due”, Case4Pareti propone in vendita un elegante e panoramico appartamento di 120 mq, posto al 3° piano con ascensore.
La proprietà gode di una vista mozzafiato sullo Stretto di Messina, ammirabile da due dei tre balconi, rendendo ogni momento della giornata piacevolmente luminoso e rilassante.
L’immobile dispone di due ingressi: quello principale introduce nell’ampio e luminoso salone, mentre il secondo conduce direttamente alla cucina, garantendo massima praticità. La zona notte comprende tre comode camere da letto, perfette per chi necessita di spazi funzionali, e due bagni, da rimodernare, ideali per la vita quotidiana di una famiglia.
A completare la soluzione troviamo un’ampia cantina, utilissima per organizzare al meglio tutto ciò che non serve quotidianamente. Gli interni sono in buone condizioni: l’appartamento è subito abitabile, richiedendo solo una semplice ritinteggiatura.
Il complesso “Messina Due” è da sempre considerato un’oasi di tranquillità grazie alla sua posizione riservata. Al tempo stesso permette di raggiungere facilmente il centro città in pochi minuti, grazie alla vicinanza con il Viale Europa e alla presenza di un comodo servizio ATAM.
Se cerchi un ambiente sereno dove rilassarti dopo una giornata intensa, questa abitazione offre tutte le qualità per conquistarti.
Per informazioni e visite:
tel. 090 42151
cell. 347 7775424
Mq interni: 120
Mq esterni: 9
Accessori
Classe energetica G

Indice efficienza energetica 175 kWh/m²a