Appartamento In vendita
S.S.114 KM 5.800
Messina, ME € 169000 (ID: CM783)
Descrizione
APPARTAMENTO ATTUALMENTE OCCUPATO DAL PROPRIETARIO
GRANDE APPARTAMENTO IN OTTIME CONDIZIONI A TREMESTIERI
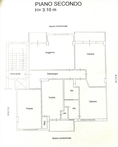
Nella zona Sud di Messina, a Tremestieri, con tutti i servizi pubblici e privati nelle immediate vicinanze, (Supermercati, Scuole, Centri commerciali, Banca, Farmacia e negozi vari) e in prossimità degli svincoli autostradali che permettono di raggiungere facilmente il centro della città, Case4Pareti propone in vendita, all’interno del rinomato complesso residenziale “Palazzo Presti”, un ampio e luminoso pentavani (3 camere da letto, grande soggiorno, studio e 2 bagni) situato al secondo piano con ascensore.
L'immobile che gode di vista mare, è stato recentemente ristrutturato ed è pronto per essere vissuto. Un unico ingresso conduce a un ampio soggiorno con finestra, al grande studio e alle due camere da letto con incantevole vista mare. Nel lato collina invece si affacciano la camera padronale col suo essenziale bagno con doccia, la spaziosa e funzionale cucina abitabile con balcone, dotata di dispensa e lavanderia e un grande bagno ospiti con vasca.
Per coloro i quali siano sufficienti 2 camere da letto e abbiano necessità di maggiori spazi conviviali, eliminando la porta scorrevole si potrebbe ricavare un grande salone doppio.
L’appartamento si presenta in ottime condizioni, curato in ogni dettaglio e caratterizzato da una straordinaria luminosità in tutti gli ambienti.
Completa la proprietà un posto auto condominiale all’interno del cancello automatico scorrevole, un valore aggiunto che garantisce comodità e praticità.
Soluzione perfetta per chi cerca comfort, tranquillità e una vista mare da godere ogni giorno.
Mq esterni: 5
Accessori
- Posto auto
- Aria Condizionata
- Riscaldamento
- Cucina abitabile
- Ascensore
- Balconi
- Cancello automatico
- Porta blindata
Classe energetica G

Indice efficienza energetica 146.29 kWh/m²a