Appartamento In vendita
via dei mille, 248

Messina, ME € 249000 (ID: CM756)

Prezzo: € 249000
In vendita
Mq: 143m2
Piano: Terzo
Vani: 4
Servizi: 1

Descrizione

APPARTAMENTO ATTUALMENTE LIBERO

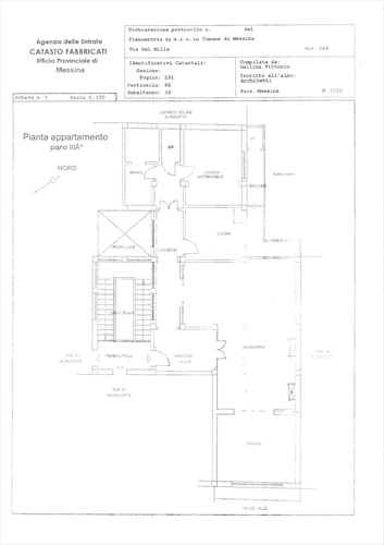
Appartamento in vendita – Via dei Mille, Messina

In pieno centro, al civico 248 di Via dei Mille, proponiamo in vendita un ampio appartamento di 143 mq, situato al terzo ed ultimo piano di un edificio d’epoca.

L’immobile si compone di un salone triplo, cucina con balconcino, camera da letto, bagno e ripostiglio. Gli ambienti spaziosi e la disposizione interna offrono infinite possibilità di personalizzazione, rendendolo ideale per chi desidera ristrutturare e creare una casa su misura nel cuore della città.

A completare la proprietà, un ampio lastrico solare sovrastante di pari superficie, perfetto come spazio esterno privato o come futura area relax.

Posizione strategica: a pochi passi da piazza Cairoli, negozi, servizi e principali collegamenti urbani.

Un immobile dal grande potenziale, ideale sia per abitazione principale che per investimento.

Mq interni: 142
Mq esterni: 3

Accessori